Trong bối cảnh đô thị hóa nhanh chóng, nhu cầu thuê nhà ở chất lượng cao tại TP. Hồ Chí Minh ngày càng tăng mạnh. Đặc biệt, mô hình căn hộ dịch vụ cho thuê đang trở thành xu hướng đầu tư hấp dẫn nhờ khả năng khai thác dòng tiền ổn định và lâu dài. Mẫu thiết kế dưới đây của Phúc Hưng Gia là một trong những giải pháp tiêu biểu, kết hợp giữa thẩm mỹ hiện đại và tối ưu công năng khai thác.
.jpg)
1. Tổng quan mẫu thiết kế căn hộ dịch vụ cho thuê
Công trình được thiết kế theo phong cách hiện đại, tập trung vào các đường nét vuông vức, mạnh mẽ và tối giản. Mặt tiền sử dụng vật liệu cao cấp kết hợp hệ thống đèn LED chạy viền tạo điểm nhấn nổi bật vào ban đêm, giúp tăng độ nhận diện thương hiệu và thu hút khách thuê.
Quy mô xây dựng từ 5–7 tầng, phù hợp với quỹ đất phổ biến tại TP.HCM, đặc biệt tại các khu vực đông dân cư, gần trung tâm hoặc khu công nghiệp.
.jpg)
2. Điểm nhấn kiến trúc nổi bật
Thiết kế mặt tiền thu hút – tăng giá trị khai thác
Mặt tiền chính là “bộ mặt kinh doanh” của căn hộ dịch vụ. Với hệ ban công kính, ánh sáng gián tiếp và bảng hiệu nổi bật, công trình tạo ấn tượng chuyên nghiệp, cao cấp ngay từ cái nhìn đầu tiên.
.jpg)
Hệ thống chiếu sáng hiện đại
Đèn LED được bố trí chạy viền các tầng và các mảng tường giúp công trình nổi bật về đêm, đồng thời góp phần tăng tính an ninh và thẩm mỹ.
.jpg)
Vật liệu bền vững – tối ưu chi phí vận hành
Sử dụng kính cường lực, đá ốp, sơn ngoại thất cao cấp giúp công trình vừa bền bỉ với thời gian vừa giảm chi phí bảo trì trong quá trình khai thác.
.jpg)
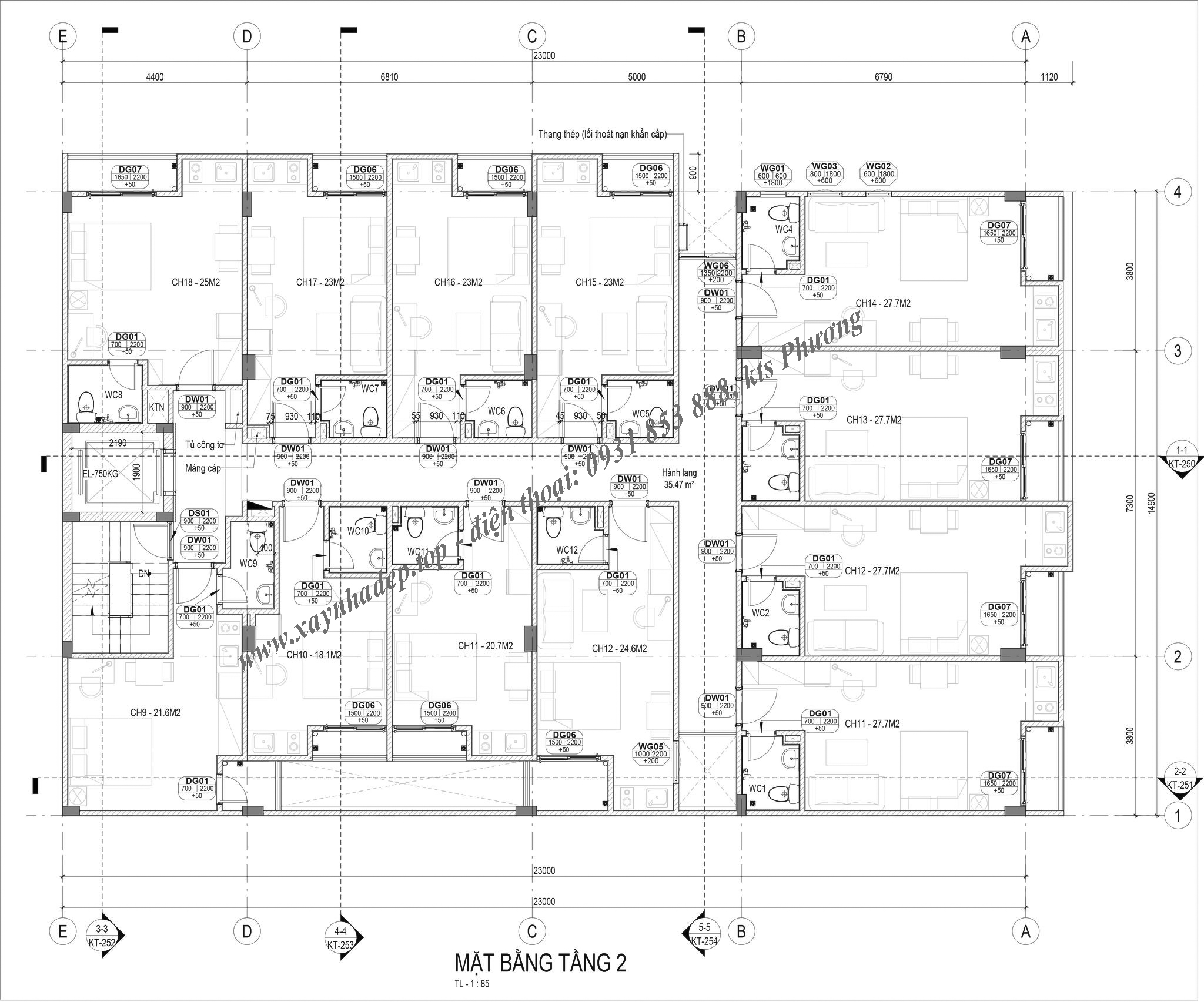
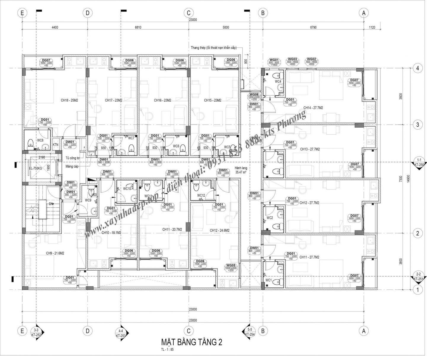
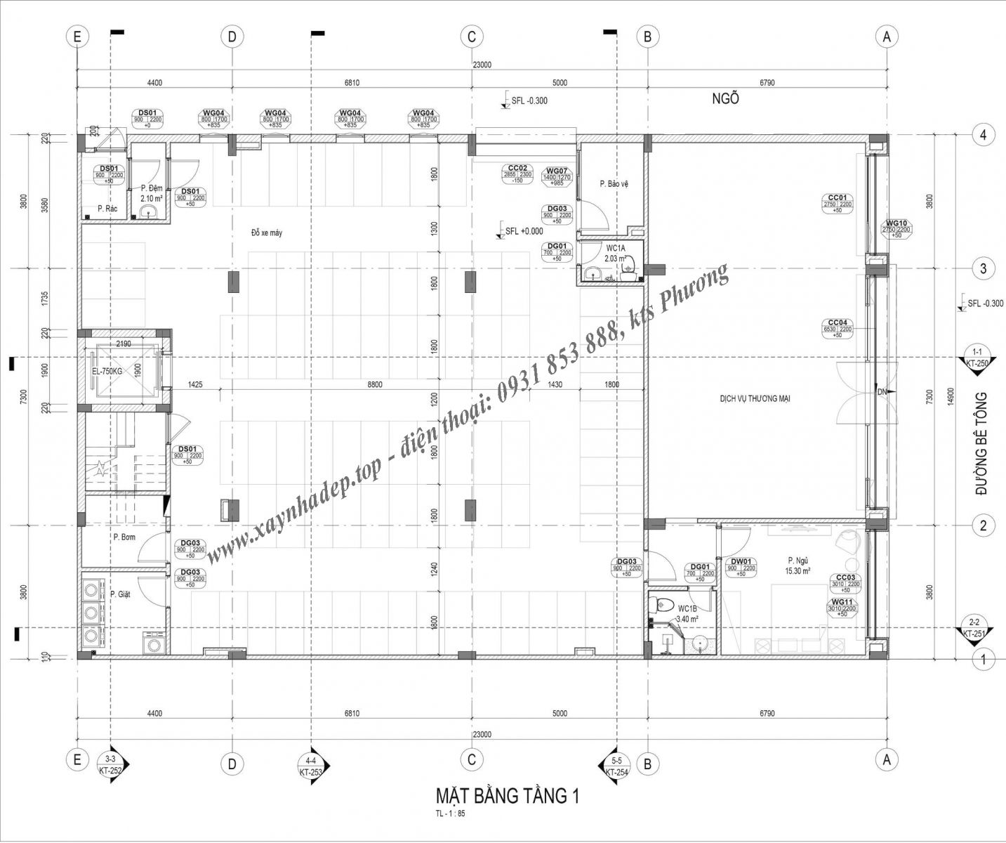
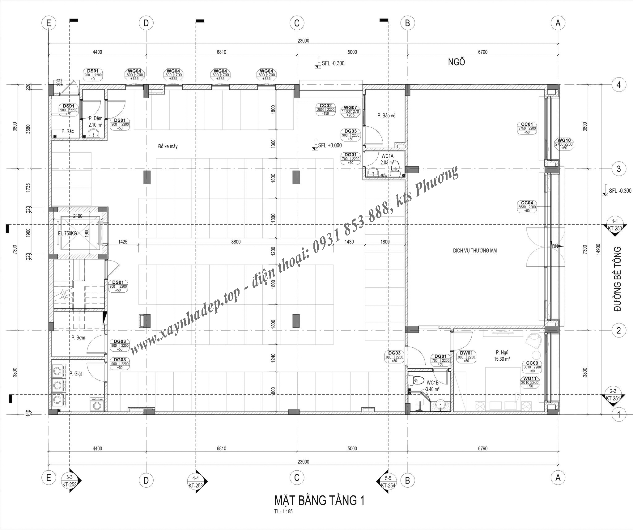
3. Bố trí công năng tối ưu cho thuê
Một trong những yếu tố quyết định hiệu quả đầu tư chính là cách bố trí công năng:
Tầng trệt:
- Khu vực lễ tân / sảnh đón khách
- Khu để xe rộng rãi
- Không gian thương mại (có thể cho thuê riêng)
.jpg)
Các tầng trên:
- Phòng căn hộ studio hoặc 1 phòng ngủ
- Mỗi phòng đều có ban công, cửa sổ thoáng
- Trang bị nội thất cơ bản hoặc full nội thất
.jpg)
Tầng thượng:
- Khu giặt phơi
- Không gian sinh hoạt chung / café rooftop (tăng giá trị dịch vụ)
Thiết kế chú trọng đến sự riêng tư nhưng vẫn đảm bảo thông thoáng và tiện nghi cho người thuê.
4. Lợi ích khi đầu tư căn hộ dịch vụ tại TP.HCM
- Nhu cầu thuê cao, đặc biệt từ người đi làm, chuyên gia, sinh viên
- Dòng tiền ổn định hàng tháng
- Tỷ lệ lấp phòng cao nếu thiết kế đẹp và vị trí tốt
- Gia tăng giá trị tài sản theo thời gian
Đây là mô hình phù hợp với các nhà đầu tư muốn tối ưu hiệu quả sử dụng đất tại khu vực đô thị.
.jpg)
5. Phúc Hưng Gia – Đơn vị thiết kế căn hộ dịch vụ chuyên nghiệp
Với kinh nghiệm thiết kế và thi công nhiều dự án căn hộ cho thuê tại TP.HCM, Phúc Hưng Gia mang đến giải pháp toàn diện từ ý tưởng kiến trúc đến tối ưu vận hành thực tế.
Chúng tôi hiểu rằng:
- Một công trình đẹp là chưa đủ
- Một công trình khai thác tốt mới là giá trị bền vững
Mẫu thiết kế căn hộ dịch vụ cho thuê tại TP. Hồ Chí Minh không chỉ đáp ứng tiêu chí thẩm mỹ hiện đại mà còn tối ưu hóa hiệu quả đầu tư và vận hành. Đây chính là lựa chọn thông minh dành cho những ai đang tìm kiếm một kênh đầu tư bất động sản an toàn và sinh lời lâu dài.
Liên hệ Phúc Hưng Gia ngay hôm nay để được tư vấn thiết kế căn hộ dịch vụ phù hợp với quỹ đất và ngân sách của bạn!
- Bình luận
